Beschrijving
Stijlvol en representatief, hoogwaardig gemeubileerd appartement van ca. 142 m2 voorzien van lift en parkeerplaats in de inpandige parkeergarage, gelegen in het complex ” ‘t Hoofdkwartier ” aan het Vondelpark. De ultieme luxe van privacy, veiligheid, ruimte en uitzicht wordt beleefd in dit appartement met internationale allure. De woning beschikt over een heerlijke living met sfeervolle gashaard, een ruime tv-zithoek en een luxe woonkeuken met uitzicht op het groene Vondelpark en voorzien van alle gemakken. Bovendien beschikt de woning over twee riante slaapvertrekken en twee royale badkamers met inloopdouche en separaat toilet.
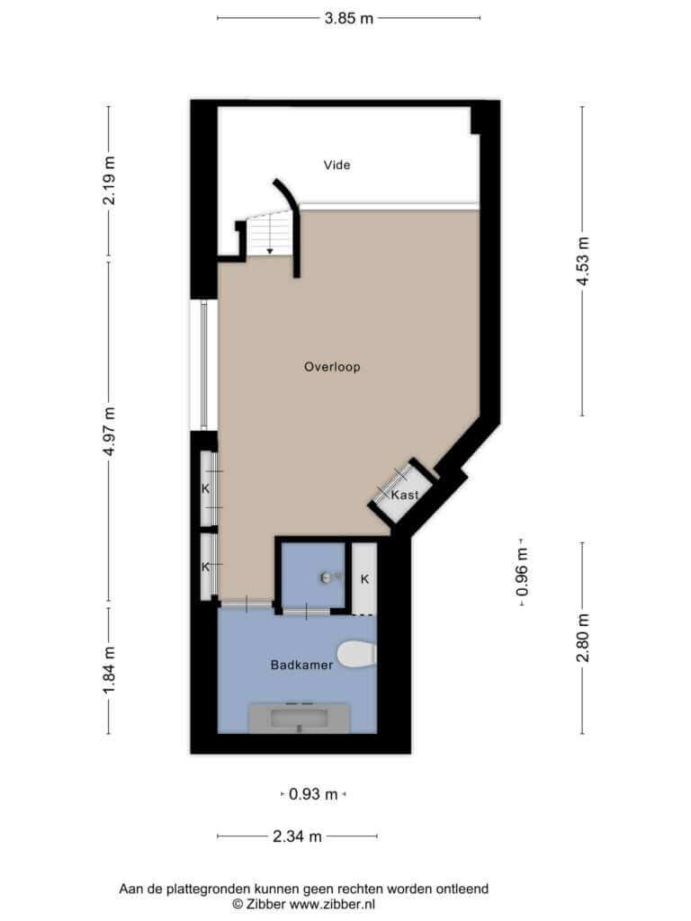
INDELING
Eerste verdieping:
Hal met separate, ruime garderobekamer met kast- en wasruimte. Indrukwekkende woonkamer en open keuken. Vanwege de hoekligging, vele ramen en de hoogte spreekt de ruimte direct tot de verbeelding. Ieder detail is met zorg uitgekozen. De luxe keuken is voorzien van diverse inbouwapparatuur. Aansluitend aan de keuken vindt u het royale eetgedeelte met grote eettafel, waaraan heerlijk kan worden genoten van etentjes met vrienden en familie met uitzicht op het prachtige Vondelpark. De woonkamer beschikt over twee zithoeken, één waar heerlijk kan worden gerelaxt bij de haard, en de ander waar televisie kan worden gekeken. De verlichting, jaloezieën en gordijnen zijn op afstand bedienbaar en door middel van het geïntegreerde B&O muzieksysteem kan er overal muziek worden geluisterd.
De master bedroom bevindt zich eveneens op deze verdieping met aangrenzend een royaal bemeten badkamer voorzien van dubbele wastafels, inloopdouche en apart toilet.
Entresol:
Via een spiltrap bereikt u de entresol, welke bijvoorbeeld gebruikt worden als tweede slaapkamer of als werkkamer. De entresol heeft veel kastruimte en biedt toegang tot de tweede badkamer, welke eveneens is voorzien van dubbele wastafels, inloopdouche en apart toilet.
LOCATIE
Het appartement ligt weliswaar in het rustige deel van de welbekende P.C. Hooftstraat, echter u bevindt zich in de chicste winkelstraat van Amsterdam met flagship stores van wereldberoemde ontwerpers en modehuizen, op steenworp afstand van enkele van de meest iconische plekken van Amsterdam. Direct naast de P.C. Hooftstraat vindt u het Museumplein, de thuisbasis van enkele van de meeste gerenommeerde musea ter wereld, als bijvoorbeeld het Rijksmuseum. Bovendien bevindt u zich in een internationale omgeving met een rijk winkelaanbod, tal van traiteurs, restaurants en cafés waar u kunt genieten van culinaire hoogstandjes of een heerlijke kop koffie. Last but not least kunt u heerlijk ontspannen in het nabijgelegen Vondelpark, het grootste en bekendste park van Amsterdam. Deze groene oase is de perfecte plek om even tot rust te komen. U kunt hier ook hardlopen tennissen of wandelen. Kortom deze locatie heeft enorm veel te bieden!
BIJZONDERHEDEN
– Lift aanwezig;
– De woning wordt gestoffeerd en gemeubileerd opgeleverd;
– Energielabel B;
– De huurprijs is exclusief gas, water, elektra en internet;
– Inclusief parkeerplaats in inpandige parkeergarage;
– Borg: 2 maanden;
– Beschikbaar: per direct.
DISCLAIMER
Alle informatie waaronder doch niet uitsluitend maatvoering heeft nadrukkelijk een indicatief karakter; er kunnen geen rechten aan worden ontleend. Verrekening wegens over- of ondermaat is uitgesloten. Het schriftelijkheidsvereiste wordt van toepassing verklaard, ook indien één of meer partijen zich als professionele huurder kwalificeren. Aanbieding vrijblijvend, oplevering in overleg.

















































































































