Beschrijving
Te huur gemeubileerde, royale woning in Millingen aan de Rijn met vrij uitzicht op een speelweide en groenstrook.
Gelegen op korte afstand van het centrum van Millingen aan de Rijn, het sportpark en de basisschool. Met de auto ben je in 25 minuten in het centrum van Nijmegen.
Indeling:
Op de begane grond kom je binnen via de hal met een modern toilet en fontein, de meterkast en de toegang naar de woonkamer met open keuken. De keuken is voorzien van een gaskookplaat met afzuigkap, vaatwasser, koelkast plus een extra Amerikaanse Koelvriescombinatie, oven en veel bergruimte. Via de lichte L-vormige woonkamer en openslaande deur stap je zo de mooi aangelegde achtertuin in met zitterras. De tuin heeft een achterom en er staat ook een praktische berging.
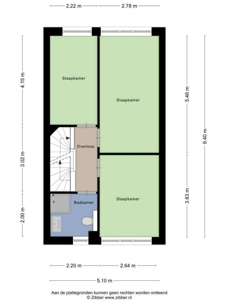
Op de eerste verdieping vind je drie ruime slaapkamers, allemaal voorzien van een laminaatvloer. De badkamer is compleet met een douche, wastafelmeubel en toilet.
Via een vaste trap bereik je de tweede verdieping, waar je een grote zolderruimte met dakraam aantreft. Hier zijn de cv-ketel en staat de wasmachine te vinden. Deze ruimte biedt volop mogelijkheden als extra slaapkamer te of hobbyruimte.
Bijzonderheden:
– Te huur vanaf 1 januari 2026 voor minimaal 12 maanden
– Huurprijs is exclusief kosten voor GWE, TV en I
– Waarborgsom €3.300,-
– Gemeubileerd
Heeft u belangstelling voor deze woning? Neem dan contact op met ons kantoor in Utrecht via utrecht@ehr.nl.









































































