Beschrijving
Deze gemeubileerde terraswoning staat in de woonwijk Schilderskwartier in Woerden en is gebouwd in een complex met appartementen, herenhuizen en terraswoningen. Helemaal klaar voor de toekomst, de woning met 3 slaapkamers en een studeerkamer wordt namelijk gasloos verwarmd met vloerverwarming op elke woonlaag. Door de vele zonnepanelen op het dak i.c.m. de warmtepomp is dit een zogenaamde nul-op de-meter woning en zullen uw energiekosten dus zeer laag uitvallen!
De indeling is als volgt:
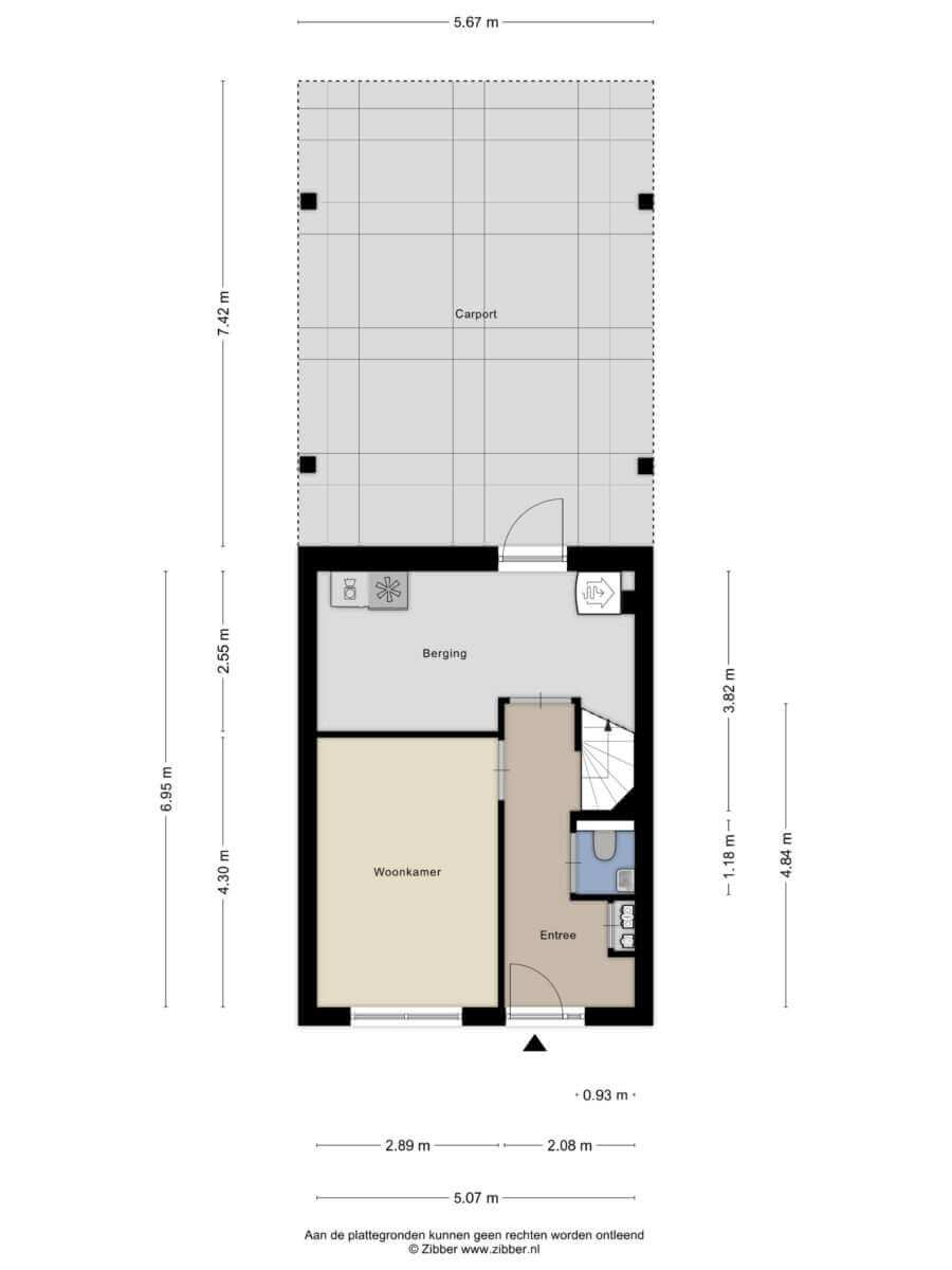
Bij aankomst kunt u uw auto in uw eigen carport parkeren en eventueel aansluiten op uw eigen laadpaal. Vanuit hier kunt u, dan wel door de achter deur via de carport naar binnen, dan wel via de voordeur aan de voorzijde.
Als u via de voordeur binnenkomt treft u daar de hal. Aan uw linkerhand ziet u de ruime, lichte werkkamer annex TV kamer, voorzien van bureau en zitbankje met TV. Aan uw rechterhand een apart toilet, voorzien van moderne hangtoilet en kraantje. Als u helemaal doorloopt komt u terecht in het washok, ook te gebruiken als berging. Naast veel opbergruimte voor bijvoorbeeld fietsen, staan hier de wasmachine en de wasdroger en een extra vriezer. Hier bevindt zich tevens de deur die u weer terug naar de carport brengt.
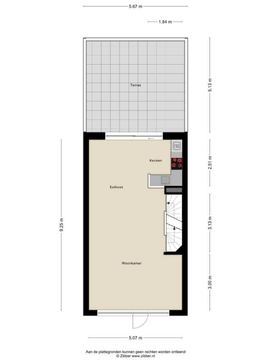
Een stukje terug, naast de wc, bevindt zich de trap die u naar de eerste verdieping brengt. Op de eerste verdieping is de woonkamer en de open keuken. Volledig volgens de huidige trends is dit een open plan leefruimte. De luxe keuken met eetbar is op strakke wijze ingebouwd en voorzien van onder andere 5 pits inductie kookplaat met afzuigkap, combi oven, vaatwasser, Quoocker kraan en koelkast. De bar brengt een visuele afscheiding in de open ruimte en is perfect voor het ontvangen van gasten.
Helemaal leuk is dat je via de schuifdeuren bij de keuken het ruime zonneterras kunt betreden. Als de zon schijnt verplaats je hierdoor met je gezelschap makkelijk naar buiten, terwijl je met regen nog kunt genieten van de frisse lucht terwijl je aan de bar binnen een drankje drinkt. Een soort Nederlandse vertaling van het Californische ‘indoor outdoor living’, waarbij de buitenruimte gevoelsmatig tot verlengstuk van de binnenruimtes wordt gemaakt.
Als je via de trap nog een verdieping omhoog gaat, kom je op de tweede en tevens bovenste etage. Hier bevinden zich de badkamer en 3 slaapkamers. De badkamer is voorzien van een douche, toilet, wastafelmeubel met zwevende spiegel.
De woning is gelegen in een rustige straat nabij basisschool, supermarkt, NS station, het centrum van Woerden en u bent snel op de snelweg om alle grote steden te bereiken. Wees er snel bij, wellicht is dit wel uw droomhuis!
De bijzonderheden op een rij:
– Te huur voor een periode van 12 maanden
– Huurprijs is exclusief kosten voor GWE, TV en internet en gemeentelijke belastingen
– Zeer energiezuinige woning
– Wordt volledig gemeubileerd geleverd
– Met eigen carport voor 2 auto’s, inclusief een laadpaal
Heeft u belangstelling voor deze woning? Neem contact op met ons kantoor in Utrecht via utrecht@ehr.nl























































































