Beschrijving
Ruim, karakteristiek 4-kamer (3-slaapkamer) woning met ruim terras, berging en authentieke details – gelegen aan de charmante Biezenstraat in Nijmegen.
De Biezenstraat ligt in een rustige, groene wijk vlakbij het centrum van Nijmegen. Hier woon je in een charmante straat met gezellige cafés, winkels en het station op loopafstand. Een ideale plek om comfortabel en centraal te wonen.
Beschikbaar per 1 april 2025 | Energielabel D | 107 m² woonoppervlak
Gelegen aan de geliefde Biezenstraat, op fietsafstand van het bruisende centrum van Nijmegen, bevindt zich dit sfeervolle, karakteristieke huis uit 1885. De woning is verdeeld over twee woonlagen en biedt maar liefst 106 m² aan wooncomfort, inclusief drie slaapkamers, een ruime badkamer en een zonnig terras van 18 m².
De locatie is ideaal: op loopafstand vind je de supermarkt en het treinstation, en met de fiets ben je in enkele minuten in hartje stad. Perfect voor wie de charme van een historische woning wil combineren met modern wooncomfort.
Indeling
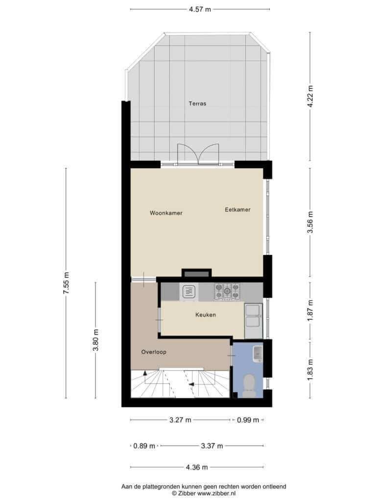
Begane grond
Entree via de karakteristieke voordeur. Hal met toegang tot de lichte woonkamer en eetkamer. Aan de achterzijde bevindt zich de gesloten keuken, voorzien van diverse inbouwapparatuur.
1e verdieping
Ruime overloop die toegang geeft tot drie slaapkamers. De badkamer beschikt over een ligbad, aparte douche, wastafel en toilet.
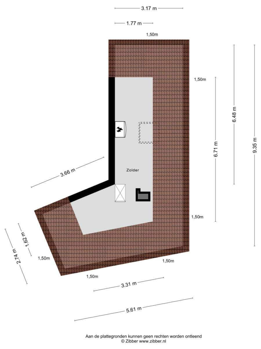
2e verdieping
Zolder
Voorzieningen en bijzonderheden:
Woonoppervlakte: 107 m²
Energielabel D
Beschikbaar per 1 mei 2025
Huurtermijn: 12 maanden met optie tot verlenging
Voor meer informatie of het inplannen van een bezichtiging kun je contact opnemen via: amsterdam@ehr.nl
















































































